Особенности и преимущественные характеристики резервуаров РГС
На сайте https://mir-steel.ru/product-category/rezervuary-rgs/ представлены высококачественные резервуары РГС, которые являются незаменимыми элементами для хранения различных жидкостей и сыпучих материалов. . Резервуары РГС — это металлические конструкции, изготовленные из прочной стали, обладающие высокой герметичностью и устойчивостью к воздействию внешних факторов. Они широко применяются в промышленности, сельском хозяйстве, а также в коммунальном хозяйстве благодаря своей надежности и долговечности.
Одним из ключевых преимуществ этих резервуаров является их высокая устойчивость к коррозии, что достигается использованием специальных защитных покрытий и современных методов обработки металла. Благодаря этому, резервуары РГС способен сохранять свои технические характеристики на протяжении многих лет, даже при эксплуатации в сложных климатических условиях. Конструкция резервуаров также предусматривает возможность их быстрого монтажа и демонтажа, что значительно упрощает работу с ними в полевых условиях или на стройках.
Оглавление
ToggleТехнические параметры и конструктивные решения резервуаров РГС
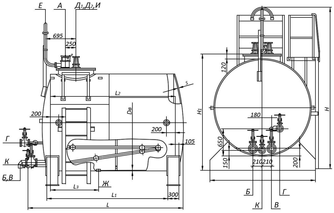
Резервуары РГС обладают определенными техническими параметрами, которые обеспечивают их надежное функционирование. Основные параметры включают в себя объем, толщина стенок, размеры и тип используемого материала. Толщина стенок варьируется в зависимости от назначения резервуара, но всегда соответствует строгим стандартам безопасности. Такие резервуары могут иметь объем от нескольких кубометров до нескольких сотен кубометров, что позволяет выбрать оптимальный вариант под конкретные нужды.
Конструктивные особенности резервуаров включают наличие специальной системы уплотнения, позволяющей предотвратить утечку продуктов и обеспечивающей абсолютную герметичность. Наличие люков, вентиляции и дополнительных устройств для контроля состояния содержимого делает эксплуатацию резервуаров максимально удобной и безопасной. Особое внимание уделяется выбору материалов для элементов конструкции, что обязательно влияет на срок службы и надежность резервуара.
Области применения резервуаров РГС и их значимость в промышленности

Резервуары РГС широко применяются в различных отраслях промышленности, что обусловлено их универсальностью и устойчивостью к агрессивным средам. В нефтегазовой отрасли они используются для хранения топлива и нефтепродуктов, в химической промышленности — для агрессивных химических веществ, а в сельском хозяйстве — для хранения жидких удобрений и воды.
Кроме того, резервуары РГС играют важную роль в системах водоснабжения и противопожарного хозяйства. Благодаря своей конструкции, они могут эффективно использоваться как резервуары для накопления и хранения питьевой воды, обеспечивая высокий уровень гигиены и безопасности. Особое внимание уделяется их применению в системах экстренного запаса воды, где надежность и быстрота доступа к резервуару являются критически важными показателями.
Использование резервуаров РГС помогает предприятиям оптимизировать процессы хранения и транспортировки материалов, снижая риски потерь и повышая общую безопасность производства.
Покупка и обслуживание резервуаров РГС: рекомендации от специалистов
При выборе резервуара РГС следует учитывать многие факторы, такие как объем хранения, условия эксплуатации, материалы, из которых изготовлен резервуар, а также требования к монтажу и обслуживанию конструкции. На сайте https://mir-steel.ru/product-category/rezervuary-rgs/ можно получить детальные консультации и индивидуальные рекомендации по подбору резервуаров, которые идеально подойдут для конкретной задачи.
Правильная эксплуатация и регулярное техническое обслуживание резервуаров являются залогом их длительного срока службы. Важными этапами обслуживания являются проверка целостности и герметичности конструкции, удаление продуктов коррозии, а также своевременная замена уплотнительных элементов и контроль состояния защитного покрытия. Соблюдение этих правил позволит предотвратить аварийные ситуации и обеспечить надежность и безопасность использования.
Инвестирование в качественные резервуары РГС и грамотное их обслуживание значительно повышают эффективность производственных циклов и минимизируют риски связанных с хранением жидкостей и материалов.
- Оценить потребности в объеме и условиях хранения для выбора подходящего резервуара


